Thiết kế nhà ống 5 tầng trên đất méo đẹp, ấn tượng
- Mặt tiền : 7m
- Chiều dài : 9.6m
- Diện tích : 67.2m2
- Số tầng : 5 tầng
- Số phòng ngủ : 3 phòng
- Chủ đầu tư : anh Long
- Năm thiết kế : 2025
- Địa điểm : Lê Chân- Hải Phòng
- Tổng mức đầu tư : xx
- Thiết kế bởi : CÔNG TY TNHH KIẾN TRÚC XÂY DỰNG HOÀN THIỆN
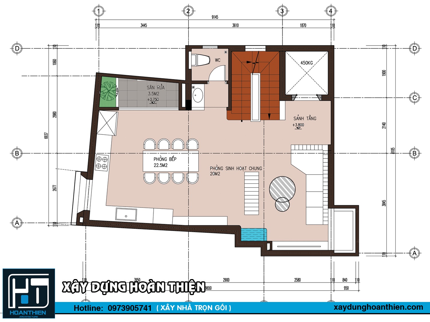
-Tầng 1: phòng khách, vệ sinhm thang bộ, thang máy, sân trước
-Tầng 2: phòng sinh hoạt chung,bếp + ăn, sân gia công, vệ sinh, thang bộ, thang máy
-Tầng 3: phòng ngủ bố mẹ, phòng tập gim, 1 vệ sinh, thang bộ, thang máy
-Tầng 4: phòng con gái 1, phòng ngủ con gái 2, vệ sinh , thang bộ, thang máy
-Tầng 5: sân thượng, phòng thờ, sân phơi, kho, thang bộ, thang máy
Thiết kế nhà ống 5 tầng trên đất méo – Giải pháp tối ưu cho nhà phố hiện đại
Giới thiệu về thiết kế nhà ống 5 tầng trên đất méo
Trong bối cảnh đô thị hóa, các lô đất không vuông vắn ngày càng phổ biến. Vì vậy, thiết kế nhà ống 5 tầng trên đất méo trở thành giải pháp tối ưu giúp gia chủ tận dụng tối đa diện tích và nâng cao giá trị thẩm mỹ.
Mẫu nhà ống trên đất méo trong hình là một ví dụ điển hình với phong cách hiện đại, xử lý khéo léo hình khối và không gian.
/mau-thiet-ke-nha-tren-dat-meo-dep-an-tuong-1.jpg)
Giải pháp thiết kế nhà đất méo hiệu quả
Tối ưu mặt bằng công năng
Khi thực hiện thiết kế nhà đất không vuông, kiến trúc sư thường:
- Biến các góc méo thành khu phụ như WC, cầu thang
- Giữ không gian chính vuông vắn cho phòng khách, phòng ngủ
- Tận dụng từng mét vuông để đảm bảo công năng
Giải pháp này giúp nhà ống 5 tầng vẫn đầy đủ tiện nghi dù diện tích không lý tưởng.
/mau-thiet-ke-nha-tren-dat-meo-dep-an-tuong-2.jpg)
/mau-thiet-ke-nha-tren-dat-meo-dep-an-tuong-3.jpg)
Xử lý hình khối kiến trúc thông minh
Trong các mẫu thiết kế nhà ống đẹp hiện đại, hình khối đóng vai trò quan trọng:
- Sử dụng mảng tường phẳng để che khuyết điểm đất méo
- Kết hợp đường cong mềm mại ở cửa sổ tạo điểm nhấn
- Thiết kế mặt tiền theo chiều đứng giúp nhà trông cao và thoáng
Đây là cách phổ biến trong thiết kế nhà phố tối ưu diện tích hiện nay.
Thiết kế mặt tiền nhà ống 5 tầng đẹp và hiện đại
Mặt tiền của nhà phố 5 tầng mặt tiền hẹp được xử lý tinh tế:
- Tông màu trắng – be giúp mở rộng không gian thị giác
- Hệ cửa kính lớn giúp tăng ánh sáng tự nhiên
- Ban công và sân thượng bố trí cây xanh tạo điểm nhấn
Những yếu tố này giúp mẫu nhà ống đẹp hiện đại trở nên nổi bật giữa khu phố.
Bố trí công năng nhà ống 5 tầng hợp lý
Một phương án phổ biến cho thiết kế nhà ống 5 tầng:
-Tầng 1: phòng khách, vệ sinhm thang bộ, thang máy, sân trước
-Tầng 2: phòng sinh hoạt chung,bếp + ăn, sân gia công, vệ sinh, thang bộ, thang máy
-Tầng 3: phòng ngủ bố mẹ, phòng tập gim, 1 vệ sinh, thang bộ, thang máy
-Tầng 4: phòng con gái 1, phòng ngủ con gái 2, vệ sinh , thang bộ, thang máy
-Tầng 5: sân thượng, phòng thờ, sân phơi, kho, thang bộ, thang máy
Cách bố trí này đặc biệt phù hợp với nhà ống trên đất méo, giúp tận dụng chiều cao thay vì chiều ngang.
/mau-thiet-ke-nha-tren-dat-meo-dep-an-tuong-3.jpg)
/mau-thiet-ke-nha-tren-dat-meo-dep-an-tuong-4.jpg)
/mau-thiet-ke-nha-tren-dat-meo-dep-an-tuong-5.jpg)
/mau-thiet-ke-nha-tren-dat-meo-dep-an-tuong-6.jpg)
/mau-thiet-ke-nha-tren-dat-meo-dep-an-tuong-7.jpg)
/mau-thiet-ke-nha-tren-dat-meo-dep-an-tuong-8.jpg)
/mau-thiet-ke-nha-tren-dat-meo-dep-an-tuong-9.jpg)
/mau-thiet-ke-nha-tren-dat-meo-dep-an-tuong-10.jpg)
/mau-thiet-ke-nha-tren-dat-meo-dep-an-tuong-11.jpg)
/mau-thiet-ke-nha-tren-dat-meo-dep-an-tuong-12.jpg)
/mau-thiet-ke-nha-tren-dat-meo-dep-an-tuong-13.jpg)
/mau-thiet-ke-nha-tren-dat-meo-dep-an-tuong-14.jpg)
/mau-thiet-ke-nha-tren-dat-meo-dep-an-tuong-15.jpg)
/mau-thiet-ke-nha-tren-dat-meo-dep-an-tuong-16.jpg)
Không gian sống xanh trong nhà phố hiện đại
Trong các mẫu thiết kế nhà phố tối ưu diện tích, yếu tố xanh ngày càng được chú trọng:
- Sân thượng trồng cây, làm vườn nhỏ
- Ban công bố trí tiểu cảnh
- Tận dụng ánh sáng tự nhiên qua cửa kính
Điều này giúp nhà ống 5 tầng luôn thông thoáng và tiết kiệm năng lượng.
Ưu điểm của thiết kế nhà ống trên đất méo
- Tối ưu hóa diện tích đất khó
- Phù hợp với đô thị đông đúc
- Linh hoạt trong thiết kế
- Tăng tính thẩm mỹ cho nhà phố 5 tầng mặt tiền hẹp
- Đáp ứng nhu cầu sinh hoạt của gia đình nhiều thế hệ
-
Lưu ý khi thiết kế nhà đất méo
Khi thực hiện thiết kế nhà đất không vuông, cần:
- Đo đạc chính xác hiện trạng khu đất
- Tránh bố trí phòng ngủ ở góc nhọn
- Ưu tiên thông gió và ánh sáng
- Chọn đơn vị chuyên thiết kế nhà ống 5 tầng uy tín
-
Kết luận
Mẫu thiết kế nhà ống 5 tầng trên đất méo là giải pháp hoàn hảo cho những lô đất khó trong đô thị. Với cách xử lý thông minh, gia chủ hoàn toàn có thể sở hữu một mẫu nhà ống đẹp hiện đại, tiện nghi và tối ưu diện tích.
CÔNG TY TNHH KIẾN TRÚC XÂY DỰNG HOÀN THIỆN
Công ty TNHH Kiến trúc Xây dựng Hoàn Thiện ra đời từ năm 2012. Với hơn 10 năm kinh nghiệm, chúng tôi đã thiết kế và thi công 500+ các công trình nhà phố, biệt thự, dinh thự với kiến trúc cổ điển và hiện đại